
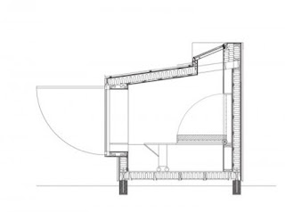
Es una caja de madera para retirarse en el jardín, relajarse, descansar, estudiar o meditar. La cama se pliega contra la pared. El aventanamiento asegura la luz y por ubicación está cabina está inmersa en el ambiente natural del jardín.


Esta hermosa cabaña reducida (Cabina) fue encontrada en Treehugger.com
